| CKA R C H I T E C T U R E D e s i g n - P l a n n i n g - S u r v e y - M a n a g e m e n t
|
 | | The Brief
CK Architecture was engaged by a private client following the inheritance of a single-storey bungalow situated on a site of approximately 0.14 hectares, with vehicular access from Beaumont Road, Dublin 9.
The site is defined by its triangular geometry and restricted road frontage, presenting both spatial and planning challenges. The existing bungalow occupies a prominent position on the plot and is surrounded by established residential development, predominantly characterised by low-rise housing.
The client’s objective was to demolish the existing dwelling and secure planning permission for the development of new residential units, with the intention of selling the site to a developer once planning consent was obtained. CK Architecture’s role was to assess the development potential of the site and to formulate a planning-led strategy that would maximise its value while responding sensitively to its constraints and context.
The site is located within a mature residential neighbourhood, in close proximity to local amenities, public transport, and community facilities. This context informed an approach focused on appropriate residential density, integration with the existing streetscape, and the delivery of a sustainable and policy-compliant development proposal.
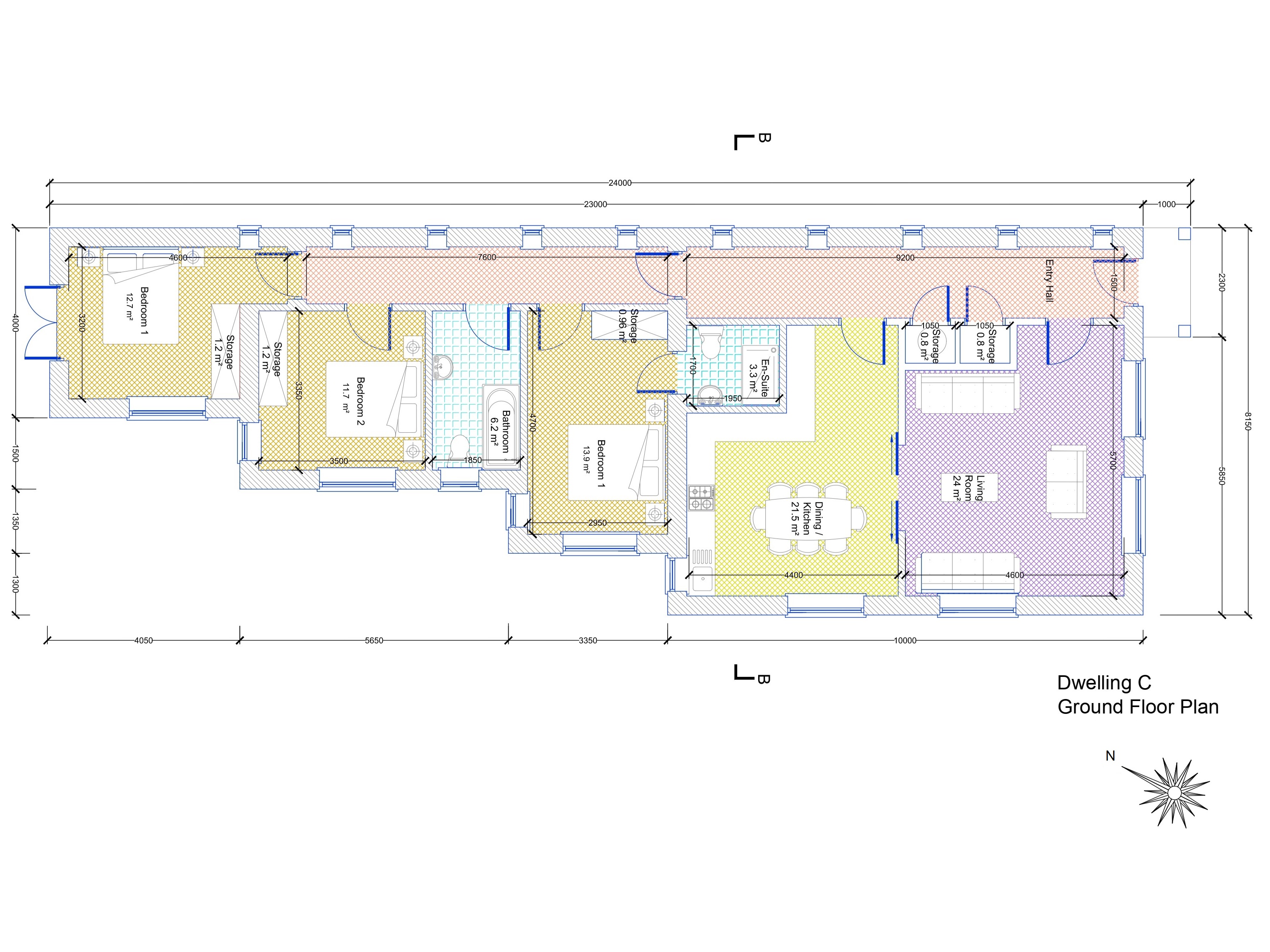
| | The Project
The proposed development comprised three new residential dwellings, carefully arranged in response to the site’s triangular geometry, limited road frontage, and established residential context.
Two double-storey semi-detached houses were positioned to the front of the site, addressing Beaumont Road and reinforcing the existing streetscape. A single-storey detached bungalow was located to the rear, taking advantage of the site’s depth while respecting the scale and privacy of neighbouring properties.
The semi-detached houses each have a gross floor area of approximately 120 sq.m and were designed to provide four-bedroom family accommodation. The internal layouts are conventional and efficient, with generous living spaces at ground floor level and well-proportioned bedrooms at first floor. Rear gardens and principal living spaces are south-facing, ensuring good levels of daylight and sunlight, while the front elevations maintain a calm and ordered relationship with the public realm.
The detached bungalow to the rear has a gross floor area of approximately 127 sq.m and provides three bedrooms and a spacious living area arranged over a single level. The bungalow was designed to be fully accessible, with step-free access throughout, making it suitable for a wide range of occupants and future adaptability. Its elongated form responds to the narrow site shape, allowing the dwelling to sit comfortably within the plot while maintaining adequate private amenity space.
Architecturally, the proposed dwellings adopt a restrained domestic language, drawing on the proportions, roof forms, and materials found in the surrounding area. This ensures continuity with the existing character of Beaumont Road while delivering a contemporary and policy-compliant residential scheme.
Vehicular access is shared via the existing entrance from Beaumont Road, minimising disruption to the public footpath and streetscape. Parking is provided within the site in a clear and legible arrangement, while communal landscaped areas and defined private gardens contribute to a quality residential environment.
| |
| |
| | The Construction The project was developed and secured full planning permission, enabling the site to be brought to the market as a fully consented residential development opportunity. CK Architecture’s appointment focused on delivering a planning-led scheme that maximised the site’s development potential while ensuring full compliance with local policy, design standards, and residential guidelines. CK Architecture’s scope of services covered the development of a robust, policy-compliant planning scheme that clearly demonstrated the site’s development potential.
The practice was not engaged for the detailed construction design, tender, or construction stages. However, the approved drawings and accompanying documentation were prepared to a standard that facilitates efficient progression to detailed design and construction by future owners or development teams. The scheme provides a clear and commercially viable framework for delivery, allowing scope for value engineering and construction-stage refinement while remaining compliant with the granted planning permission.
|
More Projects | This web site is subject to copyright and must not be copied or reproduced without consent of © 2026 CK Architecture previously trading as Christophe Krief Architect. All rights reserved. | |