| CKA R C H I T E C T U R E D e s i g n - P l a n n i n g - S u r v e y - M a n a g e m e n t
|
 | | The Brief
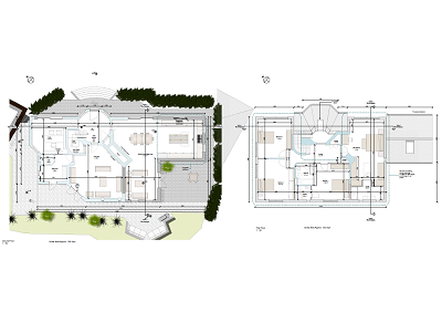
CK Architecture was appointed with the task of designing the extension and refurbishment of a dormer bungalow located in the scenic Dublin Mountains. Originally constructed in the 1980s, the bungalow presented challenges as it was inadequately insulated, and its services were outdated. Additionally, three out of the four bedrooms on the first floor were small with limited headroom. Extending on approximately 209 square meters, the dwelling included a conservatory on its side. Offering a captivating panorama of Dublin Bay, stretching from Dun Laoghaire to Howth, the residence sat on a site measuring around 0.48 hectares. The front facade of the dwelling faced North-East. The clients articulated their vision for the project with an open space living / kitchen area. They sought to replace the cramped bedrooms on the first floor with four spacious ones. The emphasis was on introducing natural light throughout the residence and optimizing the breathtaking views from the mountains.
| | The Project
In response to the clients brief, CK Architecture crafted a design proposal that addressed the structural and aesthetic deficiencies of the original building, taking advantage of the natural surroundings. The design sought to harmonize modern comfort with the timeless charm of the Dublin Mountains, establishing a serene and cohesive living environment for the clients. The proposed design introduced a conversion of the dormer bungalow into a two-storey dwelling, while avoiding any increase in the roof ridge height. This approach not only adhered to the client's vision but also safeguarded the landscape of adjacent dwellings. By elevating the roof eaves, additional space on the first floor was achieved, as well as an increased headroom, without the need for additional foundations. The incorporation of larger windows on both the front and side facades aimed to amplify natural light and accentuate the breathtaking views. A structural engineer was engaged to oversee and implement the necessary structural adjustments. An environmental engineer was consulted to upgrade the outdated onsite drainage system. The building envelope and heating system were also improved for an "A" rated energy efficiency.
| |  |  | | The Construction CK Architecture managed the tender process for the selection of a building contractor. However, due to construction cost increase caused by COVID-19, all received quotations exceeded the initially allocated budget. Despite this challenge, the clients proceeded with the appointment of a contractor, opting to omit a proposed single-storey extension to side of the existing dwelling. The construction contract included for the first-floor extension, internal modifications, re-roofing, installation of new services, and the thermal upgrade of the building envelope, all in accordance with the design for an "A" rated dwelling. The construction phase commenced in November 2022 and reached completion in February 2023.
CK Architecture undertook the responsibility of Project Supervisor for the Design Process (PSDP) and served as the clients' representative throughout the construction phase. This involved overseeing the adherence to design specifications, ensuring quality control, and facilitating effective communication between the clients and the construction team.
The clients made the decision to personally source and specify all interior finishes for their family dwelling. This hands-on approach added a personalized touch to the project, allowing the clients to create a living space that resonated with their preferences and style.
| More Projects | This web site is subject to copyright and must not be copied or reproduced without consent of © 2024 CK Architecture previously trading as Christophe Krief Architect. All rights reserved. | |