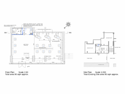
 | | The Brief CK Architecture was contacted to design the refurbishment of a retail unit intended for use as a hair salon in Leopardstaown, Dublin 18. The owner of the unit was working with a hair dresser who had developed a business plan for the opening of a hair salon in the neighbourhood mostly formed by offices, retail units and apartments. The unit floor area is 96 sqm. It is located at the ground floor of a 14-storey building, within a mixed-use development. The unit is provided with two exposed glazed facades, which are offering a flow of natural light in the interior. The unit was created from the separation of an existing larger space into two distinct units. Planning permission was granted for the sub-division during the creation of a cafe/restaurant. The unit is provided with a single access door and was equipped with some electrical points and light appliances. The unit was also equipped with 2 access pipes for wastewater drainage and one dedicated water main. A heat detector was connected to the building communal fire alarm system. The unit was not equipped with a dedicated heating system.
|
| The Project
CK Architecture worked closely with the owner, the management company, and the future tenant in crafting the design for the upcoming hair salon. The change of use from retail to a hair salon did not necessitate planning permission. However, the proposed design was the subject of a new fire safety certificate and a disability access certificate. The unit's interior was organised to accommodate wheelchair-accessible WCs and a dedicated staff/utility area. Specific selections, including tables, chairs, light fittings, and professional equipment, were meticulously selected by the future tenant. The design proposed 10 hairdressing tables, 4 nail stations, 5 hair washing units, a reception counter, and a welcoming waiting area. To ensure optimal functionality, a Design & Build Services Engineer was appointed for the HVAC (Heat Ventilation Air Conditioning) system. Another specialist engineer undertook the design and installation of the fire alarm system. As the unit's floor level awaited its finishing touch, the tenant opted for a concrete screed and an epoxy floor paint finish. Service pipes and trunking in the ceiling exposed were left exposed, aligning with the tenant's aesthetic preference. Internal concrete walls were finished with white paint and decorative briquettes, harmonizing the design with a modern and inviting ambiance. | |  |
 | | The Construction A comprehensive approach to the project involved the appointment of a skilled general building contractor, a dedicated design and build engineering team responsible for the HVAC system and another resposible for the fire alarm and prevention system. CK Architecture assumed the roles of PSDP (Project Supervisor for Design Stage) and assigned certifier.
Supervised by the management company, the works within the underground car parking area, consisted of the installation of the heat pump external unit. Tests were organised in collaboration with the management company, to validate the good functionning of the fire alarm and detection system within this 14 storey building.
The project encountered unexpected delays attributed to COVID-19 restrictions that caused a shortage in construction materials. Despite these challenges, construction commenced in July 2020. The team achieving project completion in October 2020. The successful collaboration between the appointed professionals and effective management provided a well-executed and resilient project. |