| CKA R C H I T E C T U R E D e s i g n - P l a n n i n g - S u r v e y - M a n a g e m e n t
|
 | | The Brief
CK Architecture was appointed to design a new church and community-focused development on a site located at the administrative boundary between County Meath and County Dublin, within the settlement of Clonee. The client, The Light House Christian Fellowship, acquired the site without the benefit of planning permission and sought architectural services to explore an appropriate form of development. The initial brief comprised a combined church and community centre, intended to support both religious worship and wider community engagement. The community centre element was envisaged as a multi-functional facility incorporating administrative offices, a small café / social space, and an indoor sports hall to support recreational and outreach activities. The project was subject to significant planning constraints. The site is zoned “Recreation and Open Space” under the Meath County Development Plan, which strictly limits the type, scale, and intensity of permissible development. In addition, the site lies within an identified flood risk area, necessitating careful consideration of flood mitigation, building placement, finished floor levels, and surface water management. During the course of the project, a significant change occurred in the client’s organisational structure following the resignation of a business partner. This change necessitated a reassessment of financial capacity and long-term operational requirements. As a result, the scope of the development was substantially reduced. The revised brief omitted the community centre building in its entirety.
| | The Project
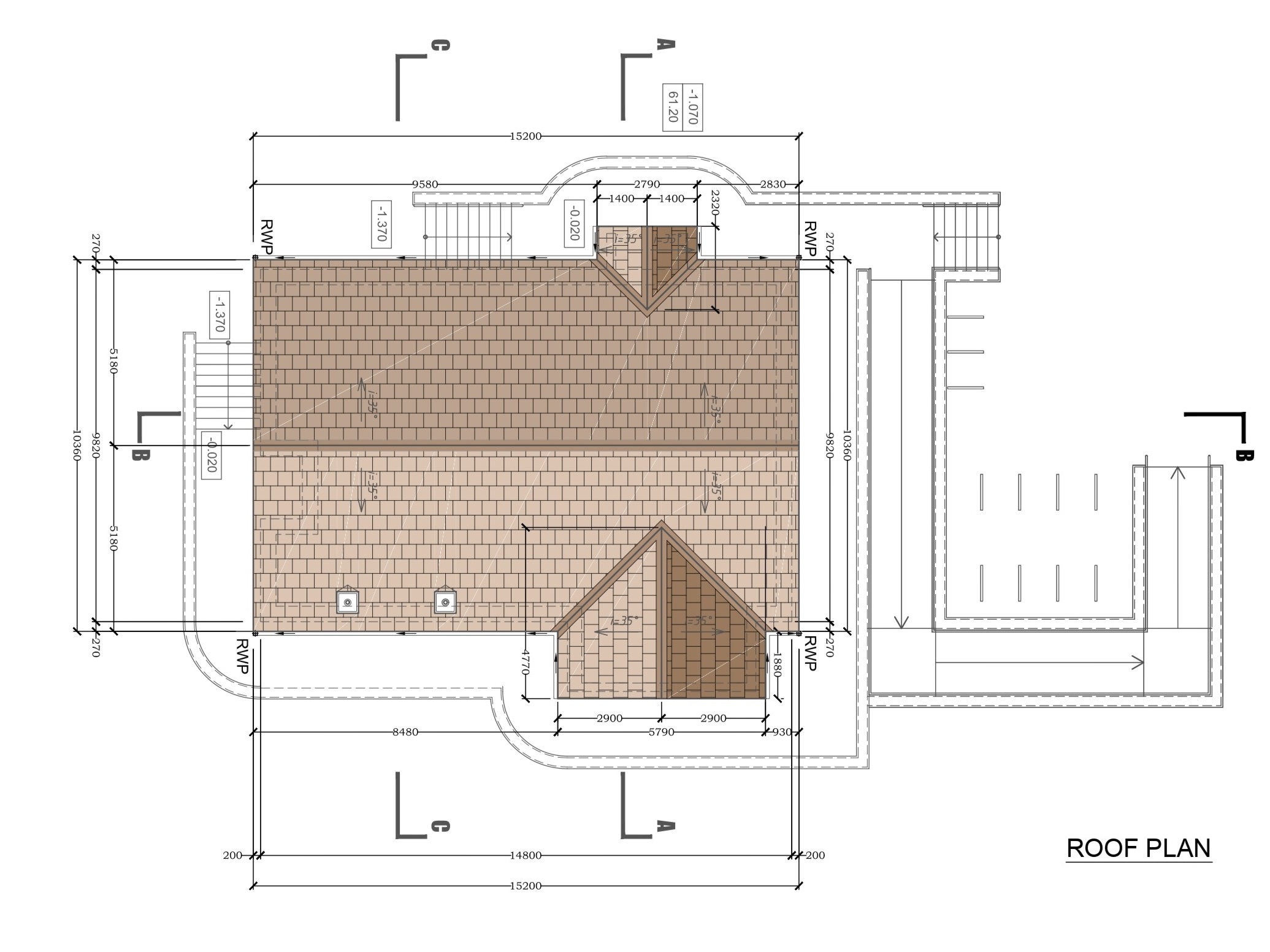
The proposed development comprises a new purpose-built church and associated site works on a prominent site in Clonee, Co. Meath. The architectural approach is informed by the traditional ecclesiastical forms of rural Irish churches, reinterpreted in a contemporary and restrained manner. The design seeks to create a dignified, legible place of worship that integrates sensitively with its suburban–rural edge context while providing modern facilities for worship, community use, and accessibility. The building is conceived as a simple, well-proportioned volume with a pitched roof and articulated entrances, ensuring a calm and recognisable civic presence without visual dominance. The church building is predominantly single-storey with a tall, pitched roof forming the principal worship space. The massing is deliberately simple and symmetrical, with secondary gabled projections marking entrances and ancillary spaces. This hierarchy of volumes reinforces the building’s civic importance while maintaining a domestic scale appropriate to the surrounding area. Internally, the church is organised around a central worship space with generous floor-to-ceiling height, expressed externally through the main roof volume. The sectional design allows for a sense of openness and natural light, with high-level windows admitting daylight while maintaining privacy and focus within the worship area. Ancillary accommodation, including storage and service spaces, is accommodated within lower adjoining volumes, ensuring operational efficiency without compromising the clarity of the main internal space.
| |
| |
| | The Construction CK Architecture developed the church’s engineering design in close collaboration with the project structural and building services engineers. Universal access was a fundamental principle of the design. Level or gently ramped approaches were provided to all principal entrances, with step-free internal circulation throughout the building. Accessible parking spaces were located adjacent to the main entrance, and tactile paving, clear signage, and appropriate external and internal lighting were incorporated to ensure safe and inclusive use by all members of the community.
A low-energy building strategy was proposed, including underfloor heating served by an air-to-water heat pump to provide efficient and comfortable environmental control. The building was designed using traditional loadbearing masonry construction with a timber roof structure. The roof build-up incorporated high-performance insulation, vapour control layers, and breathable membranes to ensure thermal efficiency and long-term durability.
The structure was designed in compliance with current building regulations, with particular attention given to acoustic performance, thermal comfort, and ventilation requirements appropriate to a place of assembly.
The project was placed on hold in August 2025, as the client is currently seeking funding to finance the construction of the church.
|
More Projects | This web site is subject to copyright and must not be copied or reproduced without consent of © 2026 CK Architecture previously trading as Christophe Krief Architect. All rights reserved. | |